Navigation: MESYS Wellenberechnung > Eingabeparameter > 3D-elastische Bauteile > 3D-elastische Planetenträger
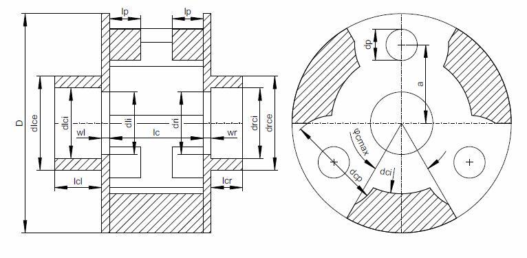
Parametrischer kreisförmiger Planetenträger
Ein parametrischer kreisförmiger Planetenträger kann entweder einseitig oder zweiseitig definiert werden. Die Geometrie ist in der folgenden Abbildung dargestellt: